【北京】陽光100公寓
更新時間:2017-07-26
| 設計風格 | 現代 | 戶型案例 | 公寓 | 案例面積 | 130 |
|---|---|---|---|---|---|
| 樓盤名稱 | 陽光100公寓 | 所在城市 | 北京 | 案例造價 | 6萬(不含主材) |
| 設計師 | 李繼錄 | ||||

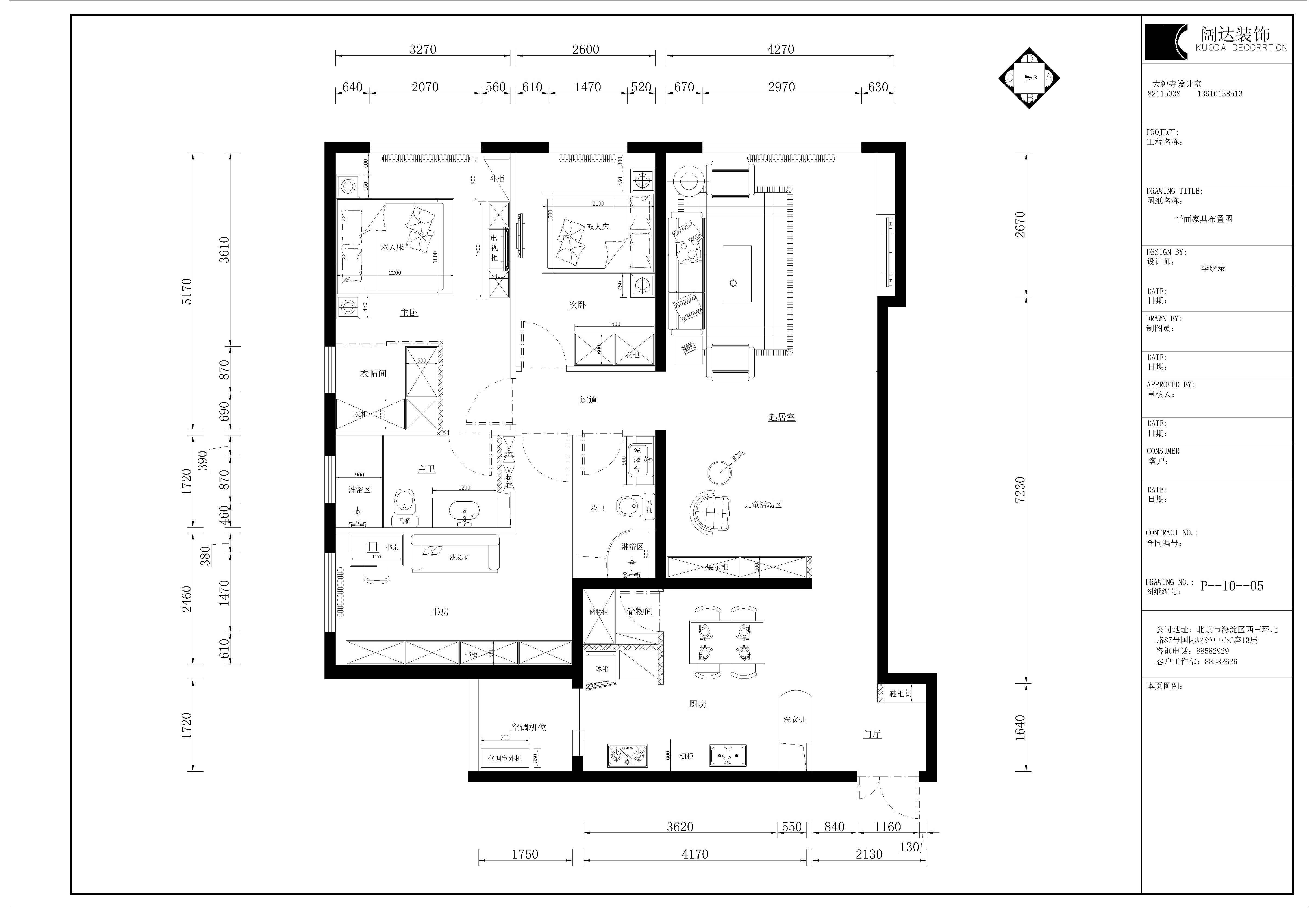
案例說明:
此戶型為三口之家,兩位老人帶孩子,風格定義為現代風格。需要有孩子的活動玩??臻g,所以把起居室分割為會客廳及活動區,而原有就餐區移到原廚房,做一開放式廚房餐廳于一體,獨立的門廳部位,這樣可以更好的區規劃。出現了拆改的項目同風格案例:更多>>
同面積案例:













京公網安備 11010802032436號